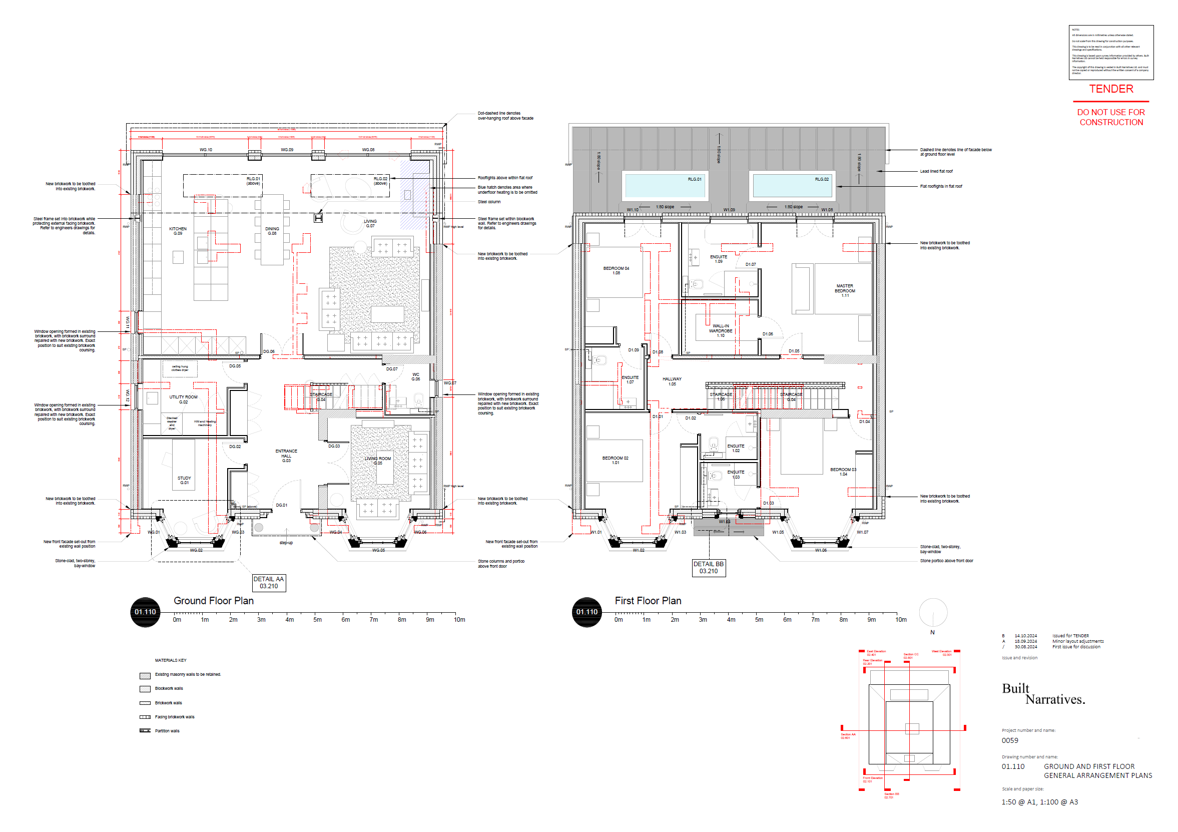
2024. Construction works are nearing completion for a large new house in Wimbledon, south London. Construction began in late 2024 with completion due by the end of 2025. The house provides up to 6 bedrooms, off-street parking for two cars and enjoys a large garden. The house will be heated by an air source heat pump and the flat roof above the slate pitched roof will house a PV array. 

2024. Wimbledon House